【 区分所有 】
| 最寄駅 | 所在地 | 面積 | 築年月 | 価格 | 間取り |
|---|---|---|---|---|---|
JR京浜東北・根岸線 大森 徒歩 14分 | 大田区南馬込2丁目 | 専有面積/17.70㎡ | 1991年06月 | 1,198万円 | R |
| 満室時利回り | 7.21% | 満室時年収 | 86.4万円 |
|---|
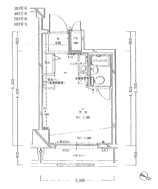
物件写真・間取り
物件概要
| 物件名 | パレドール山王北 |
|---|
| 交通機関 | JR京浜東北・根岸線 大森 徒歩 14分 都営浅草線 馬込 徒歩 12分 都営浅草線 西馬込 徒歩 15分 |
|---|
| 所在地 | 大田区南馬込2丁目 |
|---|
| 価格 | 1,198万円 |
|---|
| 間取り | R |
|---|
| 間取り詳細 | 1R |
|---|
| 土地権利 | 所有権 |
|---|
| 専有面積 | 17.70㎡ |
|---|
| 階 / 階数 | 7階建/5階部分 |
|---|
| 築年月 | 1991年06月 |
|---|
| 駐車場 | 有 16,000 |
|---|
| 現況 | 賃貸中 |
|---|
| 販売戸数 | 30 |
|---|
| 管理費 | 9,200円 |
|---|
| 修繕積立金 | 3,420円 |
|---|
| 設備 | オートバス Ⅱ型キッチン クローゼット シューズIC 室内洗濯機置場 給湯 都市ガス エアコン CATV インターネット対応 エレベーター |
|---|
| 備考 | 敷金2ケ月 更新7回目 ★出口すぐにバス停 /まいばすけっとスーパ/ ATM 事務所使用可 管理形態:全部委託 管理方式:巡回管理 管理会社:エヌティーコーポレーション |
|---|
| 情報登録日 | 2022年03月04日 |
|---|
| 情報更新日 | 2022年03月04日 |
|---|
























